Presseinformation vom 10.11.2025

Umbau Museum Bezau: Charakter bewahrt, Ausstellungsfläche erweitert

Sensibler Umbau eines Heimatmuseums in der Tradition regionaler Handwerkskunst

Optisch verlängertes Fenster Velux / Dominic Kummer

Durch das optisch verlängerte Fenster im Dachgeschoss des Erweiterungsbaus signalisiert das Museum seine Sondernutzung.

Zu dieser Presseinformation gibt es: 33 Bilder

Kurztext 808 ZeichenPlaintext

In Bezau in Vorarlberg wurde das denkmalgeschützte Heimatmuseum Bezau behutsam umgebaut und erweitert. Entstanden ist in dem historischen Bauernhaus aus dem 18. Jahrhundert ein lebendiger Ort der Begegnung und Erinnerung – ein neues Stück Öffentlichkeit im Dorf. Mit großem Gespür für den Bestand, regionales Handwerk und gesellschaftliche Einbindung entwickelte das Architekturbüro Innauer Matt Architekten einen Erweiterungsbau, der sich selbstverständlich ins Dorfbild fügt und unter Einsatz von Velux Dachfenstern zeitgemäße architektonische Akzente setzt. Ein Ansatz, der auch die Jury des Velux Architektur-Wettbewerbs 2024/25 überzeugte, die das Projekt zum Sieger kürte.

Pressetext 11006 ZeichenPlaintext

In Bezau in Vorarlberg wurde das denkmalgeschützte Heimatmuseum Bezau behutsam umgebaut und erweitert. Entstanden ist in dem historischen Bauernhaus aus dem 18. Jahrhundert ein lebendiger Ort der Begegnung und Erinnerung – ein neues Stück Öffentlichkeit im Dorf. Mit großem Gespür für den Bestand, regionales Handwerk und gesellschaftliche Einbindung entwickelte das Architekturbüro Innauer Matt Architekten einen Erweiterungsbau, der sich selbstverständlich ins Dorfbild fügt und unter Einsatz von Velux Dachfenstern zeitgemäße architektonische Akzente setzt. Ein Ansatz, der auch die Jury des Velux Architektur-Wettbewerbs 2024/25 überzeugte, die das Projekt zum Sieger kürte.

Wolkersdorf, November 2025 – Über Jahre bestand der Wunsch nach einer baulichen Erweiterung des Museums Bezau, das schon seit 1920 in einem Bregenzerwälder Bauernhof beheimatet ist. Die bestehende Ausstellung – thematisch den barocken Baumeistern des Bregenzerwaldes sowie der textilen Handwerkskunst der daheimgebliebenen Frauen gewidmet – war bislang in den Wohnräumen des alten Bauernhauses untergebracht. Was fehlte, waren funktionale, flexibel nutzbare Räume für Wechselausstellungen und Veranstaltungen.

Um diesem Bedarf gerecht zu werden, wurde das ortsansässige Büro Innauer Matt Architekten mit der Planung und Umsetzung beauftragt. Ihre enge Verbindung zur Region sowie ihr Gespür für bauliche, soziale und landschaftliche Gegebenheiten waren essenziell für den sensiblen Umgang mit dem Bestand.

Ein gemeinschaftlich getragenes Projekt
Finanziert wurde das mit rund 1,4 Mio. Euro bemerkenswert günstige Projekt durch Gemeindemittel, private Spenden, Materialspenden und zahlreiche Eigenleistungen. „Fast jeder im Dorf hat einen Beitrag geleistet“, erklärt Architekt Markus Innauer. Diese breite Beteiligung sorgte für eine starke Identifikation der Bevölkerung mit dem neuen Museum. Ohne die tiefe Verwurzelung der Architekten in der Region und ihre langjährige, für beide Seiten inspirierende Zusammenarbeit mit den Handwerkern wäre dieser Bau nicht möglich gewesen. Ihr gemeinsames Ziel: weniger Technik, mehr Raumqualität und ein respektvoller Umgang mit der traditionellen Architektursprache – das Museum sollte als Bregenzerwälderhaus erkennbar bleiben, zeitgemäß interpretiert und auf seine öffentliche Nutzung hin gestaltet werden.

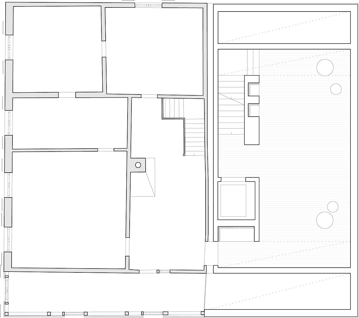
Diese Haltung zeigt sich auch in der sensiblen Einbindung in die Umgebung. Das Museum steht am Rand des Dorfes, umgeben von gleich großen Wohnhäusern und Wiesen. Vor Beginn des Umbaus bestand es aus einem Wohnhaus mit einem kleinen, ungenutzten Anbau im hinteren Bereich – eine für Bregenzerwald ungewöhnliche Gliederung, die den Wohnbereich sonst direkt mit einem großen Stall kombiniert. Der Anbau ließ sich deshalb durch den neuen zeitgemäß interpretierten Erweiterungsbau ersetzen, ohne den Charakter eines typischen Bregenzerwälderhaus zu schwächen. Von Süden erscheint das Museum als traditionelles Bauernhaus, während die dezente Gestaltung der Nordfassade die Sondernutzung signalisiert.

Architektonischer Dialog zwischen Alt und Neu
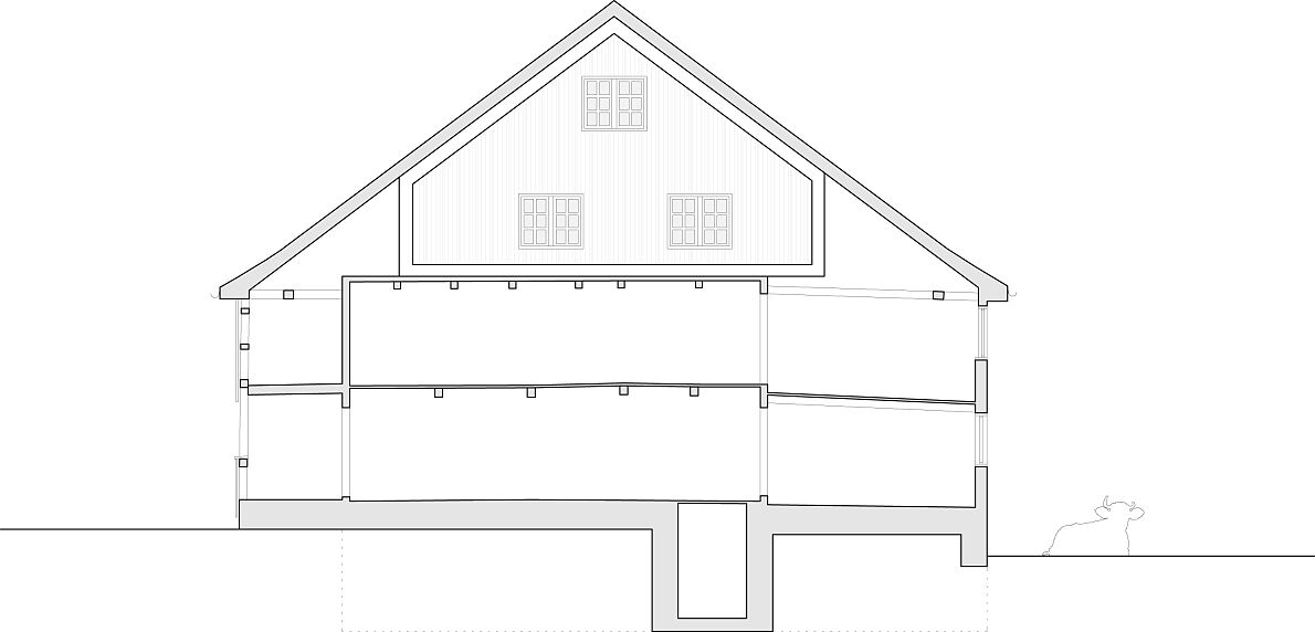
Das ursprüngliche Haus war eine reine Holzkonstruktion – ein Prinzip, das beibehalten wurde. Die historische Südfassade blieb weitgehend erhalten. An der Westfassade wurden Schindeln ausgebessert und ersetzt. Auf der Ostseite erneuerten die Architekt:innen morsche Teile, ohne den ursprünglichen Ausdruck zu verändern. Zudem entstand dort ein neuer Eingangsbereich. Der Zutritt erfolgt jetzt über eine Schiebetür, die in einen unbeheizten Windfang führt – dahinter liegt eine Glastür zum beheizten Innenraum. Diese traditionelle Lösung ist typisch für alte Bregenzerwälder Bauernhäuser und kommt in klimabewussten Projekten immer wieder zum Einsatz.

Den baufälligen Anbau ersetzten die Architekt:innen durch einen Erweiterungsbau, basierend auf einem konstruktiven Holzbau, das Untergeschoss als vollständiger Massivbau. Holzfasermaterialien wurden zur Dämmung eingesetzt und sorgen im Zusammenspiel mit dreifach verglasten Fichtenholzfenstern für ein energieeffizientes Raumklima. Der Neubau erhielt eine Holzverkleidung aus regionaler Fichte und Tanne und zeigt an der Nordfassade dekorative Versprünge. Auf eine durchgehende horizontale Gliederung zwischen den Geschossen verzichteten die Architekt:innen jedoch. Die neue Eindeckung des Daches mit schwarzen Eternitplatten wurde über alle Gebäudeteile hinweggezogen, um eine einheitliche Wirkung zu erzielen und Alt- und Neubau zu einem stimmigen Ganzen verschmelzen zu lassen.

Im Innenraum entschieden sich die Architekt:innen für einen starken Kontrast zwischen dem gedrungenen, dunklen Bestand und dem hellen, offen gestalteten Neubau. Ziel war es, eine neue räumliche Typologie zu schaffen, die gleichzeitig spannende Licht- und Blickbeziehungen ermöglicht. Während die alten Räume von niedrigen Deckenhöhen und dunklem Holz geprägt sind, schafft der neue Teil mit großzügigen, lichtdurchfluteten Zonen sowie weiß gekalkten Wänden und Massivholzdecken ein völlig anderes Raumgefühl. Drei Velux Dachfenster pro Seite sorgen hier für natürliches Licht. Das Auflösen der durchgehenden Decken betont die Übergänge zwischen Alt und Neu.

Das erste Obergeschoss des Neubaus verfügt über Durchbrüche bis ins Dach entlang der Außenwände. Je drei großzügige Velux Fenster pro Dachseite bringen dort viel natürliches Tageslicht in die sonst spärlich beleuchteten Räume. Diese moderne räumliche Typologie mit vertikalen Öffnungen schafft einen willkommenen Kontrast zu den dunklen, gedrungenen Geschossen im Altbau. Das Auflösen der durchgehenden Decken unterstützt konzeptionell die Stufen, die den neuen Teil mit dem alten verbinden; so konnten im Anbau großzügige Raumhöhen realisiert werden.

Im Dachgeschoss des Altbaus wurde ein zusätzlicher Raum eingefügt, der jedoch nicht bis an die Fassaden reicht. Dadurch entstehen eine räumliche Großzügigkeit sowie spannende Durchblicke nach oben, zwischen den Balken des darunterliegenden Geschosses.

Tageslicht als zentrales Gestaltungselement
Die Architekt:innen verfolgen eine konsequente Low-Tech-Strategie: Statt aufwendiger Technik setzen sie auf die Schönheit der Räume, durchdachte Konstruktionen, ein gutes, natürliches Innenraumklima und optimales Tageslicht. Besonders schätzen sie die Satteldachform, wie sie im Bregenzerwald verbreitet ist. In Kombination mit Velux Dachfenstern kann sanftes Tageslicht einfallen und es wird eine natürliche Belüftung ermöglicht. „Wenn ich frische Luft will, mach ich das Fenster auf“, bringt es Markus Innauer auf den Punkt. So werden im Museum auch keine kontrollierte Lüftung und keine überdimensionierte, teure Haustechnik eingesetzt. Stattdessen gibt es Fenster, die man öffnen kann, und helle Räume, die tagsüber nicht künstlich beleuchtet werden müssen. Es entstehen atmosphärische Räume, die den Wechsel der Tages- und Jahreszeiten im Innern spürbar machen. „Wer Dachräume sinnvoll nutzen will, braucht Dachfenster – daher arbeiten wir oft mit Velux Produkten. Sie bringen wertvolles Zenitlicht und ermöglichen eine einfache, natürliche Lüftung“, so Markus Innauer.

Das zenitale Tageslicht, das durch die drei Velux Fenster auf jeder Seite einfällt, beleuchtet den Raum im Obergeschoss diffus. Ermöglicht wird dies durch eine Schicht aus weißen Holzlamellen (3 × 3 cm), die mit gleichmäßigem Abstand zueinander angeordnet sind. Dank der diffusen Belichtung von oben blendet auch das Licht in den Fassadenfenstern nicht, wodurch die Ausblicke in die weite, umliegende Landschaft wie von Fensterzargen gerahmte Bilder erscheinen. Der Ausstellungsraum im Obergeschoss des Neubaus ist der Lieblingsraum von Markus Innauer. „Die Lichtführung im Raum ist wunderschön! Beim Hinaufgehen der Treppe gelangt man mittig an und sieht, wie das natürliche Licht sanft an den weiß verkalkten Wänden herabfällt. Erst beim genaueren Hinsehen erkennt man, dass es Tageslicht ist, das je nach Himmelsrichtung immer leicht variiert“, so Markus Innauer.

Ausgezeichnete Umsetzung
Seit der Eröffnung verzeichnet das Museum mit weit mehr als 10.000 Besucher:innen deutlich mehr Zulauf als erwartet. Es wurde bereits mit der Denkmalschutzmedaille 2024, dem Vorarlberger Holzbaupreis 2025 und beim Velux Architektur-Wettbewerb 2024/25 ausgezeichnet. Die Jury lobte die „zeitgemäße Interpretation von traditionellem Handwerk und Materialität“, durch die Alt und Neu zu einer „beinahe musikalischen Raum-Lichtkomposition“ verwoben werden. Holzlamellen, die das Tageslicht streuen, und helle Holzoberflächen schaffen ein Raumgefühl, das das Innere in angenehm diffuses Licht taucht und Raumschichten miteinander verschmelzen lässt. Doch fast entscheidender als Preise und Auszeichnungen: Das Museum wurde zu einem wichtigen, lebendigen Ort für das Dorfleben. Heute finden dort Vereinsversammlungen, Theateraufführungen, Vorträge und Feste statt. Die hohen Besucherzahlen seit der Eröffnung belegen die Attraktivität auch über die Grenzen von Bezau hinaus.

Hintergrundinformation: Innauer Matt Architekten
Das Architekturbüro Innauer Matt Architekten wurde 2012 von Markus Innauer und Sven Matt gegründet und hat seinen Sitz in Bezau im Bregenzerwald. Die beiden Architekten studierten in Wien und lebten einige Jahre in Zürich, bevor sie in ihre Heimat zurückkehrten. Ihre Arbeiten sind geprägt von einer tiefen Verwurzelung in der regionalen Baukultur und einem klaren architektonischen Konzeptverständnis. Sie verbinden traditionelle Bauweisen mit zeitgenössischer Sprache, setzen auf Low-Tech-Lösungen und handwerkliche Qualität. Ihr Ziel ist es, Gebäude zu schaffen, die im jeweiligen Kontext – räumlich, kulturell und sozial – verankert sind. Der Umbau des Museums Bezau ist beispielhaft für diese Haltung: präzise, gemeinschaftlich, atmosphärisch.

Bautafel

Projekt
Museum Bezau
Baumaßnahme: Umbau und Sanierung
Baujahr: 18. Jahrhundert
Dauer Umbau: September 2022 - April 2024
Baukosten: 1,4 Mio. Ero
Nutzfläche Neubau206 m² + UG 67m² (Neubau)
Ort
Ellenbogen 181, 6870 Bezau, Österreich
Bauherrschaft: Museumsverein Bezau; Ellenbogen 181, 6870 Bezau, Österreich; Museum Bezau
Architekten: Innauer Matt Architekten ZT GmbH, Bezau; Kriechere 70, 6870 Bezau, Österreich; Architekten Innauer Matt | Bezau, Austria
HolzbauKaspar Greber Holz- und Wohnbau GmbH, Bezau
Trocken-Innenausbau/ FassadeZimmerei Beer, Bezau
Schindelfassade
Schindel Hutle, Schnepfau
Dachdecker
Dachdecker Moosbrugger Dach GmbH, Bezau
Dacheindeckung: Eternit
VELUX Produkte6 x elektrisch betriebene VELUX Schwingfenster aus Holz 78 x 98 cm mit Eindeckrahmen Schiefer Stehfalz (EDS)
FassadeHolzfassade aus heimischem Fichtenholz, sägerau und naturbelassen
Innenausbau:

  • Sichtbare Massivholzdecke – weiß gekalkt
  • Verkleidung/Wandtäfer aus heimischer Weißtanne - sägerau und weiß gekalkt

Fußböden:

  • Riemenboden Holz, heimische Fichte sägerau Trockenaufbau
  • UG geschliffener Beton

Auszeichnungen:

  • 1. Platz Velux Architektur-Wettbewerb 2024/25
  • Denkmalschutzmedaille 2024
  • Vorarlberger Holzbaupreis 2025

Über die Velux Österreich GmbH
Die Velux Österreich GmbH mit Sitz in Wolkersdorf ist ein Unternehmen der internationalen Velux Gruppe. Seit mehr als 80 Jahren bringen Velux Dachfenster weltweit Tageslicht und frische Luft in das Zuhause von Menschen und schaffen so bessere Lebensbedingungen. Das Produktprogramm umfasst Dachfenster, Flachdachlösungen, dekorative Rollos und Sonnenschutzprodukte, Rollläden sowie Zubehör für den Fenstereinbau und Smart Home Lösungen. Diese Produkte tragen dazu bei, helle, gesunde und energieeffiziente Räume unter dem Dach zu schaffen, in denen Menschen leben, arbeiten, lernen und spielen. Die Unternehmensgruppe arbeitet global – mit Vertriebs- und Produktionsstätten in 37 Ländern und rund 12.000 Mitarbeitenden weltweit. In Österreich beschäftigt Velux über 70 Mitarbeitende.

Weitere Informationen unter www.velux.at

Pressetexte sowie druckfähiges Bildmaterial u.v.m. stehen im Velux Presseforum unter www.velux.at/presse zum Download bereit.

Alle Inhalte dieser Presseinformation als .zip: Sofort downloaden In die Lightbox legen

Bilder (33)

Optisch verlängertes Fenster
4 723 x 3 543 Velux / Dominic Kummer
Malerische Lage
4 724 x 3 543 Velux / Dominic Kummer
Typischer Eingangsbereich
4 735 x 3 543 Velux / Dominic Kummer
Dach verbindet
4 724 x 3 543 Velux / Dominic Kummer
Hölzerne Klappläden
2 657 x 3 543 Velux / Dominic Kummer
Holzverkleidung des Neubaus
2 657 x 3 543 Velux / Dominic Kummer
Zenitales Tageslicht
4 724 x 3 543 Velux / Dominic Kummer
Neu trifft auf alt
2 657 x 3 543 Velux / Dominic Kummer
Denkmalschutzmedaille
2 657 x 3 543 Velux / Dominic Kummer
Lichteinfall über Giebelseiten
2 657 x 3 543 Velux / Dominic Kummer
Gerahmte Ausblicke
2 657 x 3 543 Velux / Dominic Kummer
Von Ofenstangen inspiriert
2 657 x 3 543 Velux / Dominic Kummer
Sanfter Lichteinfall
2 657 x 3 543 Velux / Dominic Kummer
Neue Blickbeziehungen
2 657 x 3 543 Velux / Dominic Kummer
Drei Velux Dachfenster pro Seite
2 657 x 3 543 Velux / Dominic Kummer
Licht sorgt für neuen Raumgefühl
2 657 x 3 543 Velux / Dominic Kummer
Ausstellung über textile Handwerkskunst
4 724 x 3 543 Velux / Dominic Kummer
Kontrast zwischen Alt und Neu
2 726 x 3 543 Velux / Dominic Kummer
Traditionelle Holzverbindungen
2 658 x 3 543 Velux / Dominic Kummer
Eingang mit Schiebetür
2 657 x 3 543 Velux / Dominic Kummer
1. Platz beim Velux Architektur-Wettbewerb
4 724 x 3 543 Velux / Dominic Kummer
Alte und neue Holzschindeln
2 657 x 3 543 Velux / Dominic Kummer
Baustelle: Nordfassade
1 600 x 900 Innauer Matt Architekten
Baustelle: Arbeiten innen
1 200 x 1 600 Innauer Matt Architekten
Baustelle: Arbeit außen
1 512 x 2 016 Innauer Matt Architekten
Grafik: Neuer Raum
2 008 x 1 816 Innauer Matt Architekten
Grafik: Bereich verlängert
1 920 x 1 695 Innauer Matt Architekten
Grafik: Optische Fensterverlängerung
2 969 x 1 465 Innauer Matt Architekten
Grafik: Fassadenschnitt
1 792 x 3 221 Innauer Matt Architekten
Grafik: Lageplan
840 x 891 Innauer Matt Architekten
Grafik: 1. Obergeschoss
1 920 x 1 705 Innauer Matt Architekten
Grafik: Ausstellungsraum
2 976 x 1 429 Innauer Matt Architekten
Grafik: Erhöhte Bereiche an den Fassaden im Erdgeschoss
2 969 x 1 677 Innauer Matt Architekten

Kontakt

Velux
VELUX Nordeuropa
Maik Seete
Mail: maik.seete@velux.com
Tel.: +49 40 2853 04692

Ketchum Österreich
Vivienne Hödl
Mail: velux@ketchum.at
Tel.: +43 664 808 69 119